Μετρό - Γραμμή 4: Σε ποιες οδούς θα δημιουργηθούν οι 15 σταθμοί (pics)
H συνοπτική περιγραφή κάθε σταθμού με την χωροθέτησή του καθώς και τα βασικά και ειδικά σημεία τα οποία τον χαρακτηρίζουν🕛 χρόνος ανάγνωσης: 3 λεπτά ┋

Το τμήμα Άλσος Βεΐκου – Γουδή είναι μήκους 12,8 χλμ. και περιλαμβάνει 15 υπόγειους σταθμούς (Βεΐκου, Γαλάτσι, Ελικώνος, Κυψέλη, Δικαστήρια, Αλεξάνδρας, Εξάρχεια, Ακαδημίας, Κολωνάκι, Ευαγγελισμός, Καισαριανή, Πανεπιστημιούπολη, Ιλίσια, Ζωγράφου, Γουδή).
Η νέα γραμμή θα καλύψει πυκνοκατοικημένες περιοχές του δήμου Αθηναίων, ενώ στη σύμβαση θα προβλέπεται και η προμήθεια 18 υπεραυτόματων συρμών που θα κινούνται χωρίς οδηγό. Στις αποβάθρες θα υπάρχουν θύρες ασφαλείας, οι οποίες θα ανοίγουν μόνο εφόσον ο συρμός θα έχει ακινητοποιηθεί.
Σταθμοί Ανταπόκρισης θα είναι οι Σταθμοί: Ακαδημίας (με στ.Πανεπιστήμιο-Γραμμή 2), Ευαγγελισμός (με Γραμμή 3). Στην Ακαδημία θα υπάρχει συνδετήρια υπόγεια διάβαση που θα ενώνει τη Γραμμή 4 με τη Γραμμή 2.
H συνοπτική περιγραφή κάθε σταθμού με την χωροθέτησή του καθώς και τα βασικά και ειδικά σημεία τα οποία τον χαρακτηρίζουν δίνονται παρακάτω:
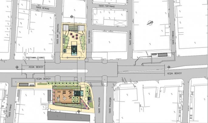
Ο Σταθμός Βεΐκου χωροθετείται στη συμβολή της Λεωφ. Ομορφοκκλησιάς (Βεΐκου) με την οδό Τράλλεων στον Δήμο Γαλατσίου

Ο Σταθμός Γαλάτσι χωροθετείται στη συμβολή της Λεωφόρου Ομορφοκκλησιάς (Βεΐκου) και επί της συνέχειας αυτής, οδό Αγ. Γλυκερίας με την Λεωφόρο Γαλατσίου στον Δήμο Γαλατσίου

Ο Σταθμός Ελικώνος χωροθετείται στη συμβολή των οδών Αγίας Γλυκερίας και Πάρνηθος στον Δήμο Αθήνας, παρά τον λόφο Ελικώνος.

Ο Σταθμός Κυψέλη χωροθετείται στη νοτιοανατολική πλευρά της πλατείας Κανάρη στον Δήμο Αθήνας, από την οδό Κυψέλης μέχρι την οδό Βελβενδού.

Ο Σταθμός Δικαστήρια χωροθετείται στα δυτικά του συμπλέγματος των πρώην κτιρίων της σχολής Ευελεπίδων (κτήρια) Δικαστηρίων στον Δήμο Αθήνας, στη συμβολή των οδών Ευελπίδων και Μουστοξύδη.

Ο Σταθμός Αλεξάνδρας χωροθετείται στη συμβολή της Λεωφ. Αλεξάνδρας με την οδό Μουστοξύδη στον Δήμο Αθήνας.

Ο Σταθμός Εξάρχεια χωροθετείται επί της πλατείας Εξαρχείων, στη συμβολή των οδών Στουρνάρη και Σπ. Τρικούπη στον Δήμο Αθήνας.

Ο Σταθμός Ακαδημίας χωροθετείται στην οδό Ακαδημίας, μεταξύ των οδών Ιπποκράτους και Σίνα στον Δήμο Αθήνας.

Ο Σταθμός Κολωνάκι χωροθετείται επί της πλατείας Φιλικής Εταιρείας (πλατεία Κολωνακίου) στον Δήμο Αθήνας, στη συμβολή των οδών Σκουφά, Πατριάρχου Ιωακείμ, Καψάλη, Κουμπάρη και Κανάρη.

Ο Σταθμός Ευαγγελισμός χωροθετείται στο πάρκο της Ριζάρη στον Δήμο Αθήνας, παράλληλα με την οδό Ριζάρη και διαγώνια σε σχέση με τον υφιστάμενο σταθμό Ευαγγελισμό της Γραμμής 3.

Ο Σταθμός Καισαριανή χωροθετείται στη συμβολή της Λεωφόρου Εθνικής Αντιστάσεως με την Λεωφόρο Βασ. Αλεξάνδρου στον Δήμο Καισαριανής, μεταξύ των οδών Υμηττού και Τζων Κένεντυ.

Ο Σταθμός Πανεπιστημιούπολη χωροθετείται στον χώρο της Πανεπιστημιούπολης του Εθνικού και Καποδιστριακού Πανεπιστημίου Αθήνας στον Δήμο Καισαριανής, βόρεια της εσωτερικής οδικής αρτηρίας.

Ο Σταθμός Ιλίσια χωροθετείται στη οδό Ινδού και στις πλατείες Αόρνου και Κύπρου στον Δήμο Ζωγράφου.

Ο Σταθμός Ζωγράφου χωροθετείται επί της πλατείας Αλεξανδρή (πλατεία Γαρδένιας) στον Δήμο Ζωγράφου, στη συμβολή των οδών Γ. Ζωγράφου και Γ’ Ορεινής Ταξιαρχίας με τη λεωφόρο Στρ. Αλεξάνδρου Παπάγου

Ο Σταθμός Γουδή χωροθετείται στην πλατεία Ελευθερίας και την οδό Λοχ. Σπηλιωπούλου στον Δήμο Ζωγράφου

Μπλόκα αγροτών: Τα επόμενα βήματα μετά τα μέτρα του Μητσοτάκη και η πρόταση για απόβαση τρακτέρ στην Αθήνα
Axios: Αποκάλυψη για μυστική συνάντηση του Γουίτκοφ με τον εξόριστο διάδοχο του Ιράν, Ρεζά Παχλαβί
Εξαφάνιση 16χρονης από την Πάτρα: Αγωνία για τη Λόρα - Το νέο βίντεο από Ζωγράφου και το μήνυμα του πατέρα της
Μια μυστηριώδης λάμψη από την άκρη του σύμπαντος: Η ανθρωπότητα έλαβε σήμα... πριν από 13 δισ. χρόνια
Live όλες οι εξελίξεις λεπτό προς λεπτό, με την υπογραφή του www.ethnos.gr
δημοφιλές τώρα: 



